info@sksmirnov.ru
Ежедневно с 08:00 до 22:00
Работаем без выходных
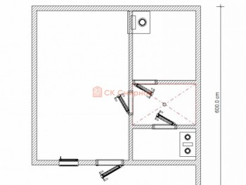
В июне 2022 завершили сборку симпатичной бани с округлой крышей. Строили под ключ, что было важно для Заказчика. Мы постарались избавить его от лишней головной боли: от фундамента до отделки всё было сделано силами нашей команды и наших партнёров.
Срок строительства — 20 дней.
Спасибо за позитивный отзыв!
Характеристики:

Политика конфиденциальности